top of page

Technical Drawings

1 h
180 US dollars
2523 E Menlo Blvd

Service Description

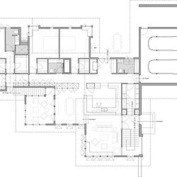
1hr  |  $180 // min. 2hr (purchased in 2hr increments. 10hr block $,1650) Time to build. The final step (should you need it) is to produce design drawings with enough detail to receive a permit or get approval from community review boards. Now it's your turn. From here you should have enough info to continue through construction. ​ ​ What you get: - Drawing Set (for permit) - Contractor List - Next Steps Checklist


Contact Details

  • 2523 E Menlo Blvd, Shorewood, WI 53211, USA


Co Design

Address

2523 E Menlo Blvd
Shorewood, WI 53211
USA

Contact

608-886-0352

©2017 by Co.. Proudly created with Wix.com

bottom of page